产品概述
PGL-B喷雾干燥制粒机集喷雾干燥/流化制粒于一体,实现液态物料一步法制粒,采用喷雾工艺,特别适用微辅料,热敏性物料,功效比FL沸腾制粒机高1—2倍。
400-822-0082
在线联系







制药工业:片剂、冲剂、胶囊剂颗粒;低糖、无糖的中成药颗粒;
食品:可可、咖啡、奶粉、颗粒果汁、调味品等;
其它行业:农药、饲料、化肥、颜料、染料等。
| 项目 | 单位机型 | PGL-3B | PGL-5B | PGL-10B | PGL-20B | PGL-30B | PGL-80B | PGL-120B | |
| 流浸膏 | 较小 | kg/h | 2 | 4 | 5 | 10 | 20 | 40 | 55 |
| 较大 | kg/h | 4 | 6 | 15 | 30 | 40 | 80 | 120 | |
| 沸腾能力 | 较小 | kg/批 | 2 | 6 | 10 | 30 | 60 | 100 | 150 |
| 较大 | kg/批 | 6 | 15 | 30 | 80 | 160 | 250 | 450 | |
| 液体比重 | kg/L | ≤1.30 | |||||||
| 原料容器量 | L | 26 | 50 | 220 | 420 | 620 | 980 | 1600 | |
| 容器直径 | mm | 400 | 550 | 770 | 1000 | 1200 | 1400 | 1600 | |
| 引风机功率 | kw | 4.0 | 5.5 | 7.5 | 15 | 22 | 30 | 45 | |
| 辅风机功率 | kw | 0.35 | 0.75 | 0.75 | 1.20 | 2.20 | 2.20 | 4 | |
| 蒸汽 | 耗量 | kg/h | 40 | 70 | 99 | 210 | 300 | 366 | 465 |
| 压力 | Mpa | 0.1-0.4 | |||||||
| 电热型功率 | kw | 9 | 15 | 21 | 25.5 | 51.5 | 60 | 75 | |
| 压缩空气 | 耗量 | m3/min | 0.9 | 0.9 | 0.9 | 0.9 | 1.1 | 1.3 | 1.8 |
| 压力 | Mpa | 0.1-0.4 | |||||||
| 作业温度 | ℃ | 室温-130℃自动调节 | |||||||
| 产品水份 | % | ≤0.5% | |||||||
| 物料收得率 | % | ≥99% | |||||||
| 设备噪音 | dB | ≤75 | |||||||
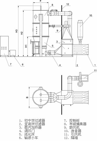
| 主机尺寸 | Φ | mm | 400 | 550 | 770 | 1000 | 1200 | 1400 | 1600 |
| H1 | mm | 940 | 1050 | 1070 | 1180 | 1620 | 1620 | 1690 | |
| H2 | mm | 2100 | 2400 | 2680 | 3150 | 3630 | 4120 | 4740 | |
| H3 | mm | 2450 | 2750 | 3020 | 3700 | 4100 | 4770 | 5150 | |
| B | mm | 740 | 890 | 1110 | 1420 | 1600 | 1820 | 2100 | |
| 重量 | kg | 500 | 800 | 1200 | 1500 | 2000 | 2500 | 3000 | |
选型例:要求每批次处理流浸膏量I=120kg(含固量为30%)、种子量II=60kg,可由I、II得出理论成品量M=mI+mII=120kg*30%+60kg=96kg,工作时间T=120kg/30kg/h=4h,技术参数栏中可查出沸腾量为标准载荷范围,故以每班完成两个批次,选用PGL-30B型较为适宜。
上一篇:FL系列沸腾制粒干燥机
下一篇:YS流化床料斗提升卸料机
近日,一步干燥2025年中工作总结会议以 “线上 + 线下” 的形式圆满召开。公司董事长查国才、总经理查文浩与各条线负责人、党员及…